ハムのラジオ第673回の配信です。 (2025/11/23 ラジオ成田から放送)
今回お送りするのは「ディレクタのアンテナ製作レポート 2025年秋」です。
毎年秋にお届けしている企画、番組ディレクタが作ったアンテナのレポートです。
今回は28MHz用「MOXON」アンテナです。コンパクトなアンテナで性能もまあまあ。
50MHz用のエレメントを仕込み、デュアルバンドにしました。
製作の様子と、使ってみての感想をお送りします。
番組では、皆様からのメッセージをお待ちしております。
ご意見、ご感想、お叱り、雑談、無線以外の話題でも結構です。
メッセージを送るには、ホームページの「お便りはこちらから」のページから、
あるいはham(アットマーク)hamsradio.net宛に電子メールでお送りください。
ハムのラジオは、このPODCASTの他、Youtubeも公開しております。
「ハムのラジオ」で検索してください。お気に入り登録、チャンネル登録もお忘れなく!!
ハムのラジオ 制作担当 JA1WTO よしはら
—————————————-
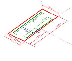
アンテナの写真と寸法です。


MMANAのデータです。コピーしてお使いください。
—–ここから—————————-
Moxon 10m 2ele-yagi 6m
*
28.1
***Wires***
30
0.0, 1.0, 0.0, 0.0, -1.0, 0.0, 0.0075, -1
0.0, 1.0, 0.0, 0.0, 1.87, 0.0, 0.006, -1
0.0, -1.0, 0.0, 0.0, -1.87, 0.0, 0.006, -1
0.0, 1.87, 0.0, 0.0, 1.9, 0.0, 0.003, -1
0.0, -1.87, 0.0, 0.0, -1.9, 0.0, 0.003, -1
0.0, 1.9, 0.0, -0.03, 1.9, 0.0, 0.003, -1
0.0, -1.9, 0.0, -0.03, -1.9, 0.0, 0.003, -1
-0.03, 1.9, 0.0, -0.55, 1.9, 0.0, 0.0045, -1
-0.03, -1.9, 0.0, -0.55, -1.9, 0.0, 0.0045, -1
-0.55, 1.9, 0.0, -0.6, 1.9, 0.0, 0.001, -1
-0.55, -1.9, 0.0, -0.6, -1.9, 0.0, 0.001, -1
-1.47, 1.0, 0.0, -1.47, -1.0, 0.0, 0.0075, -1
-1.47, 1.0, 0.0, -1.47, 1.87, 0.0, 0.006, -1
-1.47, -1.0, 0.0, -1.47, -1.87, 0.0, 0.006, -1
-1.47, 1.87, 0.0, -1.47, 1.9, 0.0, 0.003, -1
-1.47, -1.87, 0.0, -1.47, -1.9, 0.0, 0.003, -1
-1.47, 1.9, 0.0, -1.44, 1.9, 0.0, 0.003, -1
-1.47, -1.9, 0.0, -1.44, -1.9, 0.0, 0.003, -1
-1.44, 1.9, 0.0, -0.66, 1.9, 0.0, 0.0045, -1
-1.44, -1.9, 0.0, -0.66, -1.9, 0.0, 0.0045, -1
-0.1, 0.5, 0.0, -0.1, -0.5, 0.0, 0.0075, -1
-0.1, 0.5, 0.0, -0.1, 1.3, 0.0, 0.006, -1
-0.1, -0.5, 0.0, -0.1, -1.3, 0.0, 0.006, -1
-0.1, 1.3, 0.0, -0.1, 1.45, 0.0, 0.0045, -1
-0.1, -1.3, 0.0, -0.1, -1.45, 0.0, 0.0045, -1
-1.25, 0.5, 0.0, -1.25, -0.5, 0.0, 0.0075, -1
-1.25, 0.5, 0.0, -1.25, 1.4, 0.0, 0.006, -1
-1.25, -0.5, 0.0, -1.25, -1.4, 0.0, 0.006, -1
-1.25, 1.4, 0.0, -1.25, 1.6, 0.0, 0.0045, -1
-1.25, -1.4, 0.0, -1.25, -1.6, 0.0, 0.0045, -1
***Source***
1, 0
w1c, 0.0, 10.0
***Load***
0, 0
***Segmentation***
800, 80, 2.0, 2
***G/H/M/R/AzEl/X***
2, 10.0, 4, 50.0, 120, 60, 0.0
###Comment###
(C) 2025 JA1WTO
Podcast: Play in new window | Download (Duration: 46:30 — 42.6MB)


